找回密码
 立即注册

QQ登录

只需一步,快速开始

搜索

[工程参量] 位置度基准

[复制链接]
minebest 发表于 2009-5-25 11:06:40 | 显示全部楼层 |阅读模式
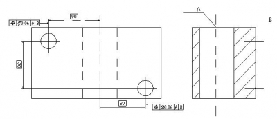
零件如图,基准是A圆柱,B面求两孔位置度,高度方向基准是任一孔还是两孔中点,依据是什么? 未命名.JPG
yj407 发表于 2009-5-25 19:10:50 | 显示全部楼层
请问B基准指的是哪个位置?是与A基准相垂直的面还是与被测孔相垂直的面,还是其它位置?
回复 支持 反对

使用道具 举报

 楼主| minebest 发表于 2009-5-26 08:19:41 | 显示全部楼层
B基准是与被测孔相垂直的面
回复 支持 反对

使用道具 举报

上帝 发表于 2009-5-26 12:44:35 | 显示全部楼层
这个图标的太不专业了:),要是我就要求客户重新标来
回复 支持 反对

使用道具 举报

yj407 发表于 2009-5-26 13:01:49 | 显示全部楼层
該 工件高度方向與其它要素未標注出相關的理論正確值﹐那么對這兩個孔的高度方向的位置度就僅考慮自身几何框圖的位置尺寸即可。也就是說﹐在高度方向僅考慮他們之間Z向(寫基准A平行距離82)。為確保兩孔的偏差能均勻分布在兩個被測孔﹐其高度方向的基准應該是這兩個孔的中點。
    測的話應該 這樣測﹕
1﹑將A基准圓柱設為Z軸。在Z工作平面上將B基准設為Y-方向。將A基准圓柱設為X﹑Y零點。
2﹑將兩個被測孔中點歸Z軸零點。分別評價兩這兩個孔的在X﹑Z向位置度,理論值分別為(90,41) 和(80﹐-41)
回复 支持 反对

使用道具 举报

规矩湾锦苑 发表于 2009-5-26 22:28:19 | 显示全部楼层
被测要素是两个孔轴心线的位置度。基准要素是一个基准体系,这个基准体系由基准A、基准B和3个理论正确尺寸组成。基准A和理论正确尺寸80与90决定了两个被测要素(孔)的左右距离。基准B决定了两个被测孔轴心线的方向(必须与基准B垂直)。理论正确尺寸82决定了两个被测孔轴心线的距离。这个图应该还缺一个理论正确尺寸,用来限制被测要素到下端面或者到上端面的距离。
回复 支持 反对

使用道具 举报

GPS 发表于 2009-5-30 23:26:05 | 显示全部楼层
图纸标注清楚,测量不是问题,但算法值得讨论

空间基准,A,通过三基面,确定了尺寸的空间投影方向
平面基准,B,实际上确定了尺寸的标注方向

下来看位置度测量:
1。此时二孔间的尺寸,被A:B基准体系所约束,B实际只约束了尺寸方向,但并没有约束这二孔在B所在平面上的移动,也就是说是在基准体系约束下二孔间相互的位置度
2。那未评定基准怎么确定?由于位置度公差标注为园型公差带,所以应在基准约束下做二孔对理论位置的最佳拟合,建立新的评定基准,然后再进行位置度公差评定。此时的原点在哪?完全是按实际的尺寸与理论值的拟合结果而定。

上面说的是理论上的方法,到底现在的软件能不能,会不会这样算,就不知道了。
回复 支持 反对

使用道具 举报

yj407 发表于 2009-6-1 16:49:50 | 显示全部楼层
軟件當然有這個功能了。最佳擬合的最終目的無非是將將位置公差均勻分布中給各各孔而已。該被測要素僅兩個孔﹐那它的最佳擬合位置當然是在兩孔的中點了。
回复 支持 反对

使用道具 举报

西府洽川 发表于 2009-6-3 16:49:09 | 显示全部楼层
测量时除了要考虑孔与A基准的位置度还要考虑两孔轴线与B面的垂直度。

评分

参与人数 1金币 +2 收起 理由
yj407 + 2 认同观点

查看全部评分

回复 支持 反对

使用道具 举报

您需要登录后才可以回帖 登录 | 立即注册

本版积分规则

Archiver|手机版|小黑屋|计量论坛 ( 闽ICP备06005787号-1|闽公网安备35020602000072号 )
电话:0592-5613810 QQ:473647 微信:gfjlbbs 原国防计量论坛(-=始于2005年=-)

GMT+8, 2026-4-9 18:40

Powered by Discuz! X3.5

© 2001-2026 Discuz! Team.

快速回复 返回顶部 返回列表